Mapa   Ficha
Chalet Independiente en venta en Muro, Baleares
REF. 2336

218 m2

2

2
venta: 300.000 €
antes: 320.000 €
Descripción
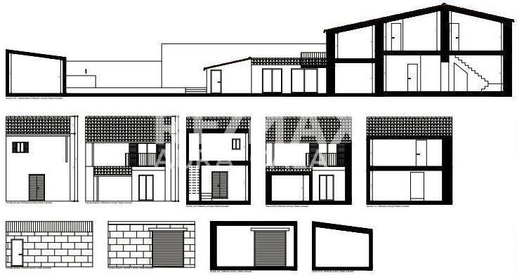
Se vende casa tradicional ubicada en el centro histórico de Muro, Mallorca. Una ubicación estratégica a quince minutos de las playas de la Bahía de Alcudia y Can Picafort. Ideal para quienes buscan una propiedad con la gestión administrativa ya resuelta. La propiedad se vende a reformar, con la ventaja competitiva de contar con proyecto arquitectónico y licencia de obra. Esto permite al comprador iniciar la ejecución de forma inmediata, ahorrando tiempo y dinero. Distribución del Proyecto: Planta Baja: Salón de entrada Amplio salón-comedor. Cocina independiente de grandes dimensiones. 1 baño completo. Exterior: Jardín privado y zona de parking. Planta Primera: 2 dormitorios dobles (con posibilidad de tener 3 dormitorios). 1 baño completo. Datos Clave: Ubicación: Casco antiguo de Muro (entorno tranquilo y auténtico). Estado: Para reformar (con permisos en regla). Extras: Espacio exterior (jardín) y plaza de aparcamiento privada, elementos escasos en el centro del pueblo. Inversión ideal tanto para primera residencia como para proyecto vacacional por su proximidad a la costa y la rapidez de ejecución que ofrece la licencia activa. ¡Aprovecha esta oportunidad! ,escríbenos para coordinar una visita a tu futura casa.
Características
Precio Venta 300.000 €
Precio/m² 1.376
Año de construcción 1900
Construidos 218 m2
Útiles 200 m2
Parcela 236 m2
Dormitorios 2
Baños 2
Terraza
Calificación Energética (B) VER
Luz
Agua
Ubicación
La dirección del inmueble es aproximada.
Escalas de eficiencia


-

Contáctanos

Si deseas más información sobre esta propiedad, por favor, rellena el formulario.

 Sí, he leído y/o acepto las Condiciones de uso y la Política de privacidad